PROPERTY
The property is an attractive detached character period house with the oldest part being a former thatched cottage (now tiled) with later additions. The accommodation is spacious and highly versatile and has an abundance of potential. The front door opens to the entrance hall which runs through the centre of the ground floor. To one side is an attractive double aspect reception room with large bay window and feature fireplace, To the other side is the spacious kitchen/breakfast room, again with large bay window. It is fitted with a comprehensive range of cupboards. There is a delightful principal double aspect sitting room with open fireplace and cupboard to one side. To the rear of the house is a later single storey addition that is currently two additional reception rooms, one having double doors to the garden. A shower room completes the ground floor. On the first floor are four bedrooms, each with their own character, together with a family bathroom.
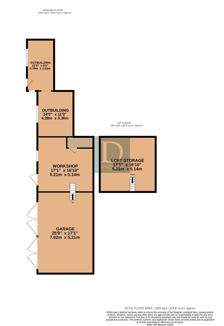
Externally the property has a range of period outbuildings including a former shop plus a workshop. There is a substantial double barn garage with excellent loft storage. The garaging provides the parking for the property and this is accessed over the neighbour's drive. The gardens to the property are partly walled and laid principally to lawn with an array of mature shrubs and trees.
LOCATION
Kenninghall is a delightful village with a shop, public house and a cafe/bistro as well as health centre and primary school. There is a secondary school in nearby Old Buckenham. The historic market town of Diss is approximately 9 miles away, which offers excellent amenities including schools, health facilities, sports facilities, regular bus service and main line railway station to London (Liverpool Street). Norwich, Ipswich and Bury St Edmunds are all about 22 miles. Stations at Attleborough and Eccles Road, being the closest station to the property, approximately 3 miles away, offer train services to Norwich and Cambridge and onwards through the Midlands terminating at Liverpool Lime Street.
SERVICES
Oil fired central heating. Mains water, electricity and drainage are connected. (Durrants have not tested any apparatus, equipment, fittings or services and cannot therefore verify they are in working order).
LOCAL AUTHORITY
Breckland District Council
Council Tax Band E
ENERGY PERFORMANCE
TBC
VIEWING
Viewing is strictly by arrangement with the vendors' agent Durrants, please call 01379 642233.
BUILDINGS CONSULTANCY
Our Building Consultancy Team will be happy to provide advice to prospective buyers on planning applications, architectural design, building regulations and project management - please contact us if you would like to discuss.
AGENT'S NOTE
The front door and outbuildings are accessed across the neighbour's gravel driveway for which the property has a right of way.
Complete the form below to send a property enquiry. A member of the team will be in touch as soon as possible.
Whether you’re a first-time buyer or a seasoned property investor, you can trust our local knowledge and expertise.
Durrants would be delighted to provide a free market valuation of your property or land.
Durrants offers a service that few can match when it comes to selling, buying or letting your home.
Take a look at our latest properties available for sale across Norfolk and Suffolk.
Find your dream home with expert guidance and local knowledge in today’s property market.
Durrants offers a service that few can match when it comes to selling, buying or letting your home.
With 170 years of expertise, Durrants offers a service that few can match when it comes to selling your home.
Book a free expert property valuation and take the first step toward a successful home sale.
Durrants offers a service that few can match when it comes to selling, buying or letting your home.
Find out about our trusted letting services and expert property management services.
Expert landlord services offering reliable property management across Norfolk and Suffolk rental markets.
Durrants offers a service that few can match when it comes to selling, buying or letting your home.
Take a look at the current properties available to rent across Norfolk and Suffolk.
Find your ideal rental home in Norfolk or Suffolk with our expert guidance and local knowledge.
Durrants offers a service that few can match when it comes to selling, buying or letting your home.
Durrants offers a service that few can match when it comes to selling, buying or letting your home.
Whether you’re a first time buyer or a seasoned property investor, you can trust our local knowledge and expertise.
We are extremely proud of the continued first class customer service we provide.
Durrants offers a service that few can match when it comes to selling, buying or letting your home.
Whether you’re a first-time buyer or a seasoned property investor, you can trust our local knowledge and expertise.
Durrants would be delighted to provide a free market valuation of your property or land.
Discover our latest development, designed with quality, comfort, and community in mind.
Take a look at our latest properties available for sale across Norfolk and Suffolk.
Find your dream home with expert guidance and local knowledge in today’s property market.
Get an accurate market appraisal from trusted professionals who know your area inside and out.
With 170 years of expertise, Durrants offers a service that few can match when it comes to selling your home.
Book a free expert property valuation and take the first step toward a successful home sale.
Get an accurate market appraisal from trusted professionals who know your area inside and out.
Find out about our trusted letting services and expert property management services.
Expert landlord services offering reliable property management across Norfolk and Suffolk rental markets.
Read the latest stories, announcements, and insights from across our offices and local communities.
Take a look at the current properties available to rent across Norfolk and Suffolk.
Find your ideal rental home in Norfolk or Suffolk with our expert guidance and local knowledge.
From schools to transport links, our area guides help you choose the right place to call home.
From estate agency to planning and auctions, discover the people and values behind Durrants.
Whether you’re a first time buyer or a seasoned property investor, you can trust our local knowledge and expertise.
We are extremely proud of the continued first class customer service we provide.
Read the latest stories, announcements, and insights from across our offices and local communities.