Description
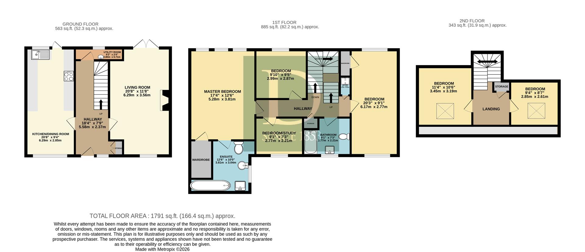
Approaching 1 Wellington Court, you are greeted by the stunning exterior, which retains its historical character. As you enter through the main front door, you step into a spacious hallway leading to the beautiful staircase and doors to the kitchen, lounge and understairs utility area. The cosy yet spacious lounge area features a fireplace, dual aspect views and double doors which open onto the garden. The generous kitchen/dining space has been recently modernised and is full of natural light, with a door opening onto the garden and a window overlooking the cobbled courtyard area. It is equipped with bespoke fitted cupboards, two ovens, induction hob, work surfaces/base units and integrated appliances such as a fridge and dishwasher. There is a small utility room next to the kitchen with washing machine and shelves.
The staircase leads to the first floor where you will find four bedrooms, plus an ensuite, family bathroom and additional cupboard space on the landing. Bedroom one is the master bedroom which boasts a walk-in wardrobe and ensuite bathroom, with bath, shower attachment, basin and toilet, as well as views across the walled garden. Bedroom two is a spacious double room with dual aspect views. There is a separate shower room next to Bedroom two. Bedroom three is a smaller double room, currently used as a study. Bedroom four is a single room. The family bathroom offers a bath with shower over, basin and toilet.
The second-floor landing leads to a further two bedrooms and features a generous cupboard area. Bedrooms five and six are both double rooms with storage in the eaves. Depending on preferences, these spaces could alternatively be used as home offices or playrooms.
Off the courtyard, you will find the double garage and off-road parking.
One of the many highlights of this property is the gardens, which consist of a walled private garden and an acre of wonderful communal gardens. The spacious formal garden boasts various hedges and mature shrubs, as well as a fishpond with a fountain. Access to further garden space is offered via two bridges over a stream. Cross either one to find yourself in a unique paradise of nature, featuring a summerhouse along with mature trees, shrubs and lawn.
Location
The north Suffolk market town of Halesworth is a pretty town with a wide range of independent shops mainly situated along a pedestrianised Thoroughfare and Market Place. There is a weekly market on Wednesdays. The town has a primary school, library, railway station and excellent bus links to other local towns. Norwich the county city of Norfolk is located approximately 24 miles north, Ipswich the county town of Suffolk is 31 miles south and the popular regency resort of Southwold is only 9 miles to the east. A similar distance away is the heritage coastline and the nature reserves of Minsmere and Dunwich. Halesworth has so much to offer from the Halesworth Arts Festival and numerous other events at The Cut arts centre, the annual Ink Festival which encourages aspiring writers, the Latitude Music Festival at Henham and also the Gig in the Park which alternates between Halesworth and Diss. All in all, an active, vibrant, and welcoming place to live.
Tenure
Freehold
SERVICES
Mains water, electricity, gas and drainage are connected to the property. (Durrants has not tested any apparatus, equipment, fittings or services and so cannot verify they are in working order).
LOCAL AUTHORITY
East Suffolk F
EPC
E
VIEWING
Strictly by appointment with the agent's Halesworth office. Please call 01986 872 553.
DURRANTS BUILDING CONSULTANCY
Our Building Consultancy Team will be happy to provide advice to prospective buyers on planning applications, architectural design, building regulations, and project management - please contact the team directly.
AGENTS NOTES
Please note there is a maintenance charge under a management company for the communal areas, of approximately £330 per month.
Complete the form below to send a property enquiry. A member of the team will be in touch as soon as possible.
Whether you’re a first-time buyer or a seasoned property investor, you can trust our local knowledge and expertise.
Durrants would be delighted to provide a free market valuation of your property or land.
Durrants offers a service that few can match when it comes to selling, buying or letting your home.
Take a look at our latest properties available for sale across Norfolk and Suffolk.
Find your dream home with expert guidance and local knowledge in today’s property market.
Durrants offers a service that few can match when it comes to selling, buying or letting your home.
With 170 years of expertise, Durrants offers a service that few can match when it comes to selling your home.
Book a free expert property valuation and take the first step toward a successful home sale.
Durrants offers a service that few can match when it comes to selling, buying or letting your home.
Find out about our trusted letting services and expert property management services.
Expert landlord services offering reliable property management across Norfolk and Suffolk rental markets.
Durrants offers a service that few can match when it comes to selling, buying or letting your home.
Take a look at the current properties available to rent across Norfolk and Suffolk.
Find your ideal rental home in Norfolk or Suffolk with our expert guidance and local knowledge.
Durrants offers a service that few can match when it comes to selling, buying or letting your home.
Durrants offers a service that few can match when it comes to selling, buying or letting your home.
Whether you’re a first time buyer or a seasoned property investor, you can trust our local knowledge and expertise.
We are extremely proud of the continued first class customer service we provide.
Durrants offers a service that few can match when it comes to selling, buying or letting your home.
Whether you’re a first-time buyer or a seasoned property investor, you can trust our local knowledge and expertise.
Durrants would be delighted to provide a free market valuation of your property or land.
Discover our latest development, designed with quality, comfort, and community in mind.
Take a look at our latest properties available for sale across Norfolk and Suffolk.
Find your dream home with expert guidance and local knowledge in today’s property market.
Get an accurate market appraisal from trusted professionals who know your area inside and out.
With 170 years of expertise, Durrants offers a service that few can match when it comes to selling your home.
Book a free expert property valuation and take the first step toward a successful home sale.
Get an accurate market appraisal from trusted professionals who know your area inside and out.
Find out about our trusted letting services and expert property management services.
Expert landlord services offering reliable property management across Norfolk and Suffolk rental markets.
Read the latest stories, announcements, and insights from across our offices and local communities.
Take a look at the current properties available to rent across Norfolk and Suffolk.
Find your ideal rental home in Norfolk or Suffolk with our expert guidance and local knowledge.
From schools to transport links, our area guides help you choose the right place to call home.
From estate agency to planning and auctions, discover the people and values behind Durrants.
Whether you’re a first time buyer or a seasoned property investor, you can trust our local knowledge and expertise.
We are extremely proud of the continued first class customer service we provide.
Read the latest stories, announcements, and insights from across our offices and local communities.